陶瓷一线品牌陶瓷十大畅销品牌广东省守合同重信用企业工程瓷砖推荐品牌联系我们我要加盟


护眼防滑砖开拓者

金艾陶家装:成都中环丰锦155㎡的欧式风格装修鉴赏

【作者】瑞儿 【来源】金艾陶【发布日期】2017/2/12

小区:成都中环丰锦

户型:三房两厅

设计风格欧式风格

应用瓷砖品牌:金艾陶瓷砖

本案设计理念:生活的繁杂多变的世界里已是烦扰不休,而简单、自然的生活空间却能让人身心舒畅,感受宁静和安逸在纷扰的现实生活中找到平衡,缔造出一个令人心驰神往的写意空间,本单元欧式风格装修,打造舒适大气的生活氛围。

 

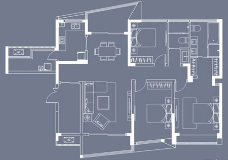
成都中环丰锦9  3、5、8、9号楼B3户型

金艾陶家装:成都中环丰锦155㎡的欧式风格装修鉴赏 

陶瓷一线品牌金艾陶瓷砖KTA9503、KYP8062、KYS8061、KA9M001_KC9M002效果图

金艾陶家装:成都中环丰锦155㎡的欧式风格装修鉴赏 

陶瓷一线品牌金艾陶瓷砖KTA9503、KYP8062、KYS8061、KA9M001_KC9M002效果图

金艾陶家装:成都中环丰锦155㎡的欧式风格装修鉴赏 

陶瓷一线品牌金艾陶瓷砖KTA9503、KYP8062、KYS8061、KA9M001_KC9M002效果图

金艾陶家装:成都中环丰锦155㎡的欧式风格装修鉴赏 

陶瓷一线品牌金艾陶瓷砖KTA9503、KYP8062、KYS8061、KA9M001_KC9M002效果图

金艾陶家装:成都中环丰锦155㎡的欧式风格装修鉴赏 

陶瓷一线品牌金艾陶瓷砖KJP1820、KB9M007效果图

金艾陶家装:成都中环丰锦155㎡的欧式风格装修鉴赏 

陶瓷一线品牌金艾陶瓷砖KTA98003效果图