陶瓷一线品牌陶瓷十大畅销品牌广东省守合同重信用企业工程瓷砖推荐品牌联系我们我要加盟


护眼防滑砖开拓者

金艾陶家装:佛山怡翠晋盛花园126㎡的欧式风格装修鉴赏

【作者】瑞儿 【来源】金艾陶【发布日期】2016/12/24

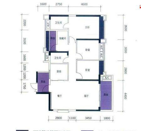
小区:佛山禅城怡翠晋盛花园 

户型:三房两厅

设计风格:欧式风格

应用瓷砖品牌:金艾陶瓷砖

本案设计理念:不少的欧式设计,都是将古典欧式风格的主元素,融入现代的生活元素。B本单元的设计不只是豪华大气,更有惬意和温馨。厨房的设计注入粉色元素,粉色少女心,更是增添了梦幻色彩,这样梦幻一般的厨房装修有没有打动您呢?

 

 

佛山禅城怡翠晋盛花园8座04单元

 

 

陶瓷一线品牌金艾陶瓷砖KJX1802、KJP1813、KJP1812效果图

 

陶瓷一线品牌金艾陶瓷砖KPX36028及其配套产品效果图

 

陶瓷一线品牌金艾陶瓷砖KJX1802、KJP1813、KJP1812效果图

 

陶瓷一线品牌金艾陶瓷砖KJX1802、KJP1813、KWD58045效果图

 

陶瓷一线品牌金艾陶瓷砖KPM36036及其配套产品效果图

 

陶瓷一线品牌金艾陶瓷砖KJX1802、KJP1813效果图