【作者】瑞儿 【来源】金艾陶【发布日期】2016/6/23
小区:徐州开元翡翠湾
户型:F户型
设计风格:现代时尚风格
应用瓷砖品牌:金艾陶瓷砖
本案设计理念:现代时尚风格的装修风格迎合了现在年轻人的喜爱,现在都市的忙碌生活,我们需要一个休息的港湾!清新的家居设计,柔和的色调,舒适的设计与家具,让人感受都市生活中的清新与放松。

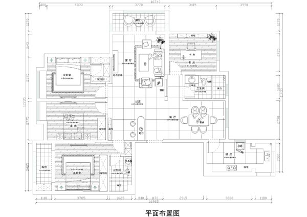
徐州开元翡翠湾F户型图

进门右手边的简约吧台设计,让这个空间多了一份放松的氛围。整个空间墙面采用的是偏冷色的色调,而地面的金刚釉KYP8069的淡黄色与吧台相呼应,增加了空间的明亮度。

黑色镂空的木艺装饰搭配金黄天龙KYS8086的简单线条,简单却很有个性的电视背景墙,时尚感很强。筒灯散发着淡淡的白光,米色的布艺沙发散落几个抱枕,慵懒舒适的氛围油然而生。难得的假期,泡上一杯茶,捧着喜欢的书籍,斜靠在沙发上,是打发时间的好选择哦!

黑色的长方形餐桌搭配条纹靠背的餐椅,墙面用黑灰的金刚釉瓷砖装饰空间,更显现代时尚。窗帘的那抹蓝色让整个空间增添了活力与小清新,很适合小年轻的二人世界。

该卧室的风格是现代时尚,线条简明的卧室家具尽显利落与大方,墙面跟地面选用了米色的金刚釉KYP8069跟灰色纹理的金黄天龙KYS8086相搭配,显得更加时尚与大气。